Register or log in to the Ultralets investment portal to view more of our investment properties

Maritime House, Hull HU1 2DB

Asking Price

£450,000

Current rent

£16,600


Vacant

Full Refurb

Contact Liam to discuss further

Connect on LinkedIn

Mobile: 07361258548

Office: 01482 562 562

Email Address: liam@ultralets.co.uk

Our customers rate us an Excellent local agent

Maritime House, Hull HU1 2DB

Asking Price

£450,000

Current rent

£16,600


Vacant

Full Refurb

Contact Liam to discuss further

Connect on LinkedIn

Mobile: 07361258548

Office: 01482 562 562

Email Address: liam@ultralets.co.uk


Maritime House, Hull HU1 2DB

Commercial Offices with Planning for 20 Apartments

Guide price £450,000 - £500,000

Property Brief

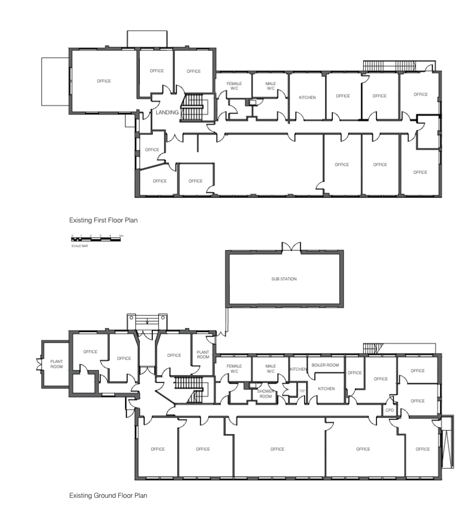
We are pleased to offer Maritime House to our investment portal, a vacant freehold commercial property boasting an internal footprint of circa 833 sqm on 0.4 acres of land. The prominent two-storey detached office building is conveniently located in close proximity to Hull's old town, Humber Street, Hull Marina and Kingston Retail Park. 

Opportunity
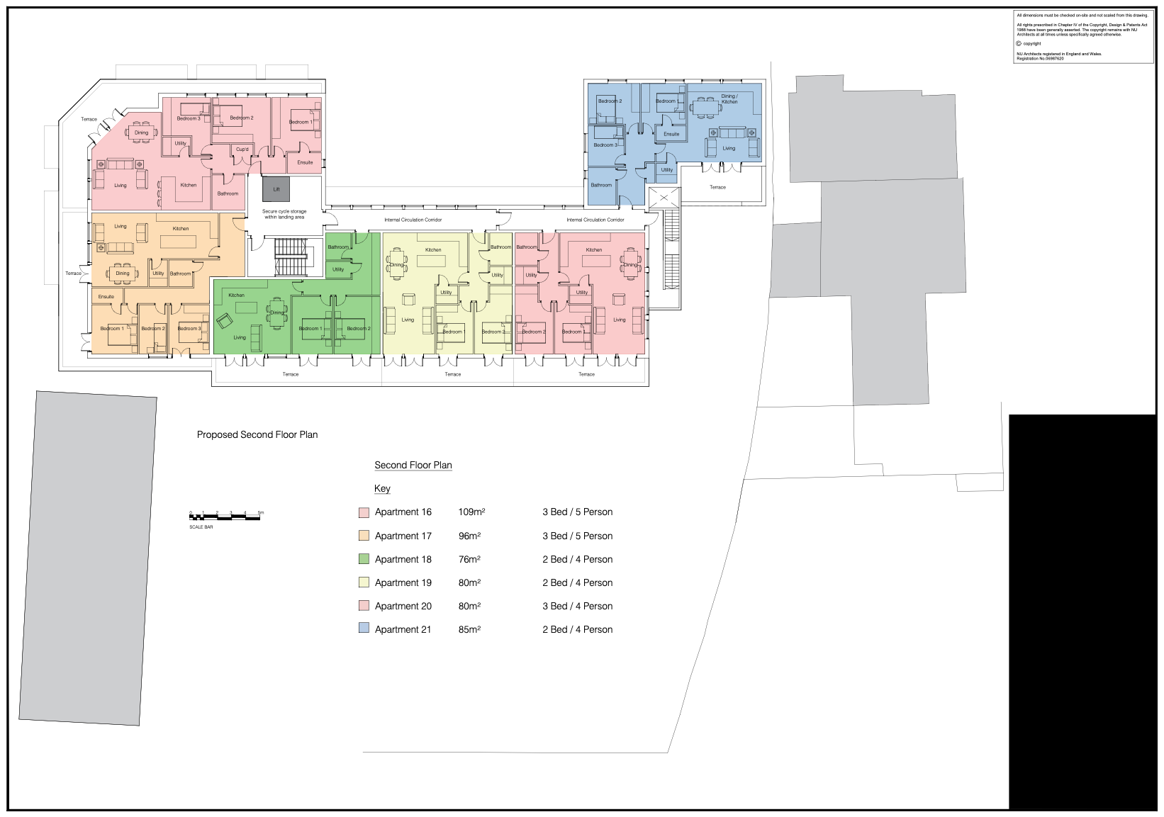
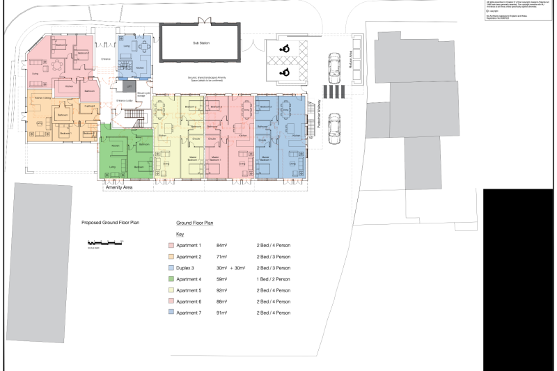
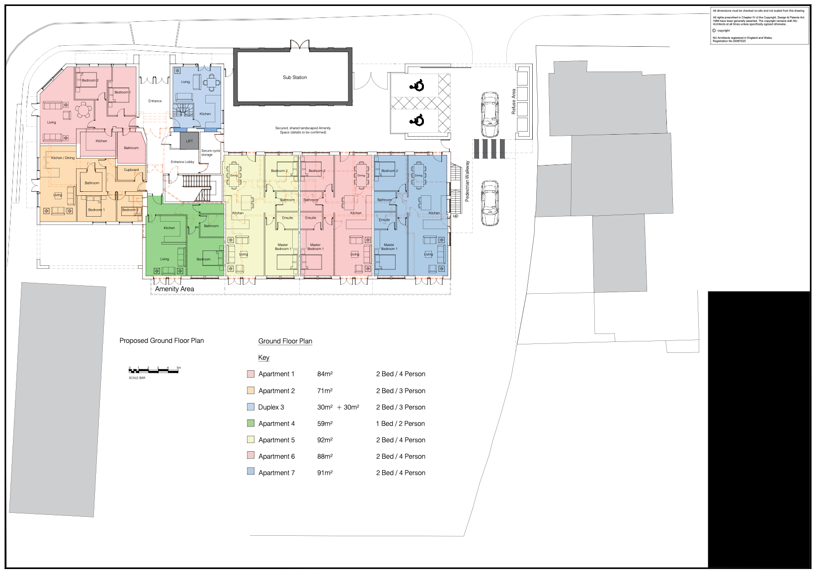
On 1st September 2023, Hull City Council approved planning for the "Conversion of and extensions to the existing building to form 20 apartments and a ground floor management office", of which 15 car parking spaces were also permitted under the approval. Internal footprint would increase 1,710 sqm. Below is a schedule of the building's proposed layout as per planning:

1 x Management office (84 sqm)
4 x One-bed apartments (between 54 sqm and 70 sqm)
12 x Two-bed apartments (between 71 sqm and 95 sqm - includes one duplex)
4 x Three-bed apartments (between 88 sqm and 109 sqm)

https://www.hullcc.gov.uk/padcbc/publicaccess-live/applicationDetails.do?keyVal=R8UK16SO06800&activeTab=summary

Estimated Market Rents
One-bed apt. - £750 pcm
Two-bed apt. - £800 pcm
Two-bed duplex apt. - £825 pcm
Three-bed apt. - £900 pcm
Parking spaces - £25 pcm

Total - £16,600 pcm

Compliance
Non-domestic EPC rating: F (131)
Rateable value: £23,750 effective 1st April 2023
VAT: Property not elected for VAT




Please note that a buyer's fee of 1.5% + VAT is payable to Ultralets for securing the property off-market. 25% payble upon offer acceptance, the remaining 75% payable upon completion.


Key Features

Vacant

Full Refurb

Commercial

40 Bedrooms

20 Bathrooms

Freehold

Potential to add value

Gas Central Heating


Location and area


Energy Performance Certificate

See below the energy charts for this property


Floor Plan